最終更新日:2024年4月1日
市営住宅/福
福団地
| 棟 | 1~5号館 | A・C・D・E・G棟 | S棟(シルバーハウジング) | |
|---|---|---|---|---|
| 所在地 |
1・2号館:福新町2008番地 3・4・5号館:福新町2010番地 |
A・C・D・E棟:福新町2007番地 G棟:福新町2011番地 |
福新町2011番地 | |
| 建設年度 | 昭和39~42年度 | 平成7~23年度 | 平成14年度 | |
| 構造 | 鉄筋コンクリート4階建 | 鉄筋コンクリート3階建 | 鉄筋コンクリート3階建 | |
| 住戸形式 | 6・4.5・K |
6・K 6・3・K |
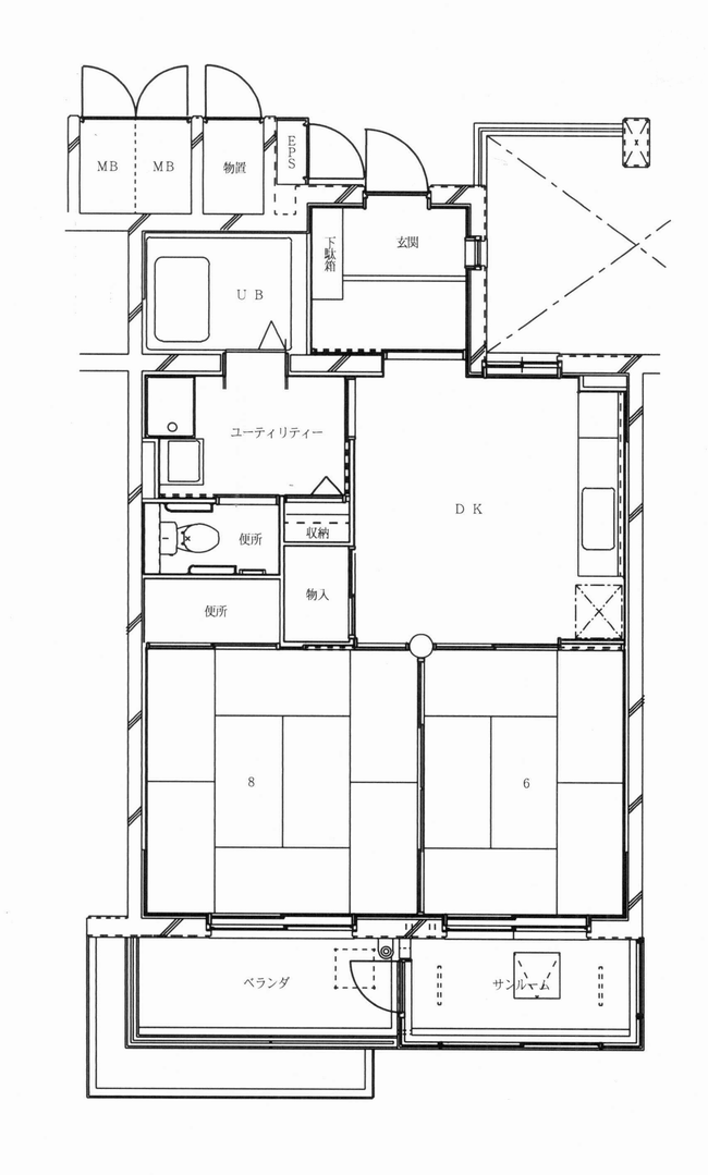
8・6・6・DK ほか |
6・6・LDK 6・6・DK 6・LDK |
| 家賃 | 7,200~13,900 | 10,600~24,000 | 18,800~68,500 | 25,400~58,700 |
| 学校 | 社西小学校、社中学校 | |||
| その他 |
風呂なし 単身入居 |
浴室、浴槽 単身入居可能 |
浴室、浴槽付き エレベーター設置 一部単身入居可能 |
浴室、浴槽付き 一部単身入居可能 |
| 募集方法 | 随時募集 | 空家発生時に抽選 | ||
福団地(1~5号館)の写真 福団地(A棟)の写真
福団地(1~5号館)の間取り(例) 福団地(E棟)の間取り(例)
お問い合わせ先
建設部 市営住宅課
電話番号 0776-20-5570 | ファクス番号 0776-20-5573
〒910-8511 福井市大手3丁目10-1 市役所本館4階 【GoogleMap】
業務時間 平日8:30~17:15
ページ番号:003389


